Главная
Каталог
Производство окон ПВХ и конструкций из алюминия
Оборудование и станки для производства окон ПВХ
AWCL-200C Полностью автоматическая линия для 4-угольной сварки окон и дверей из ПВХ с двойной головкой и автоматической очисткой (протяжного типа)
AWCL-200C Полностью автоматическая линия для 4-угольной сварки окон и дверей из ПВХ с двойной головкой и автоматической очисткой (протяжного типа)
Связь с ведущим специалистом +7 (495) - 505 - 79 - 78 / info@vegasd.ru
-
Особенности
- Профессиональная автоматическая линия для сварки углов и зачистки наружных углов цветных ПВХ-профилей, которые могут быть сразу приварены к прямоугольной оконной раме.
- С помощью передаточного механизма, сформованное окно передается в устройство для очистки углов с двойной головкой. Одновременно быстро очищаются внешние угловые швы и канавки для клеевой ленты на двух соседних угловых швах.
- Затем сформированное окно передается на 2-головочный станок для очистки угловых швов. После срабатывания переключателя обнаружения, происходит возврат для очистки оставшихся двух смежных угловых швов.
- В верхнем и нижнем прижимных зажимах применена запатентованная технология, обеспечивающая ровность и эстетичность верхнего и нижнего сварных швов.
- Можно выбрать между бесшовной сваркой на нижней поверхности и сваркой с микрошвами на верхней поверхности. В процессе сварки можно устанавливать крючки и очищать сварные швы на верхней и нижней поверхностях. Угол очистки ровный, а прочность сварного шва – высокая.
- В экструдере используются высокоточные режущие инструменты из легированных материалов, которые после закалки подвергаются точной механической обработке. Инструменты стандартизированы и поддерживают замену.
- 5-осевой 2-головочный станок с ЧПУ для очистки угловых швов взаимодействует с 4-угольным сварочным аппаратом для обмена данными, автоматически устанавливает ширину окна в соответствии с переданными размерами и автоматически запускает программу обработки.
- 4-осевой шарнир с двойной головкой позволяет выполнять интерполяцию по дуге и линейную интерполяцию, обеспечивая быструю и идеальную очистку внешних углов окна и канавки для резиновой ленты.
- Движущаяся часть станка оснащена высокоточными линейными квадратными направляющими, обеспечивающими стабильность и надежность.
- Оснащен цветным сенсорным экраном и системой ЧПУ известной отечественной марки, которая управляет большим инерционным серводвигателем и автоматически запускает программы обработки, что делает работу удобной, стабильной и надежной.
- Станина сварена из толстостенных прямоугольных стальных труб, которые обладают высокой несущей способностью и трудно деформируются. Станина разборная и удобна для транспортировки.
- Оснащен устройством автоматической продувки, разрезанный сварной шов может быть автоматически продут.
- Профессиональный промышленный дизайн обеспечивает идеальное сочетание практичности оборудования и красивого внешнего вида, на станок приятно смотреть и прикасаться к нему.
Технические характеристики
Электропитание 380В, 50Гц Потребляемая мощность Сварочный аппарат: 9,5 кВт
Блок регулировки угла наклона: 10,5 кВтРабочее давление 0,6~0,8 МПа Диапазон сварочных профилей Мин.: 500x700 мм
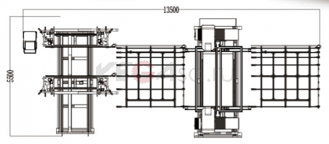
Макс.: 1800x3000 ммРазмеры сварочных профилей Выс.= 20~120 мм Шир.= 120 мм Размер профиля с четким углом наклона Выс.= 30~120 мм Шир.= 120 мм Габариты 13500x5500x1850 мм Доставка товара
- Доставка до любой точки России транспортными компаниями
- Срочная доставка DHL (2 дня в любую точку России)
- Поставка "под заказ" от 5 до 10 дней.
Оплата товара
Наличный и безналичный расчет
Гарантия
Официальная гарантия от производителя
Сервис
Ремонт и обслуживание
-
Отзывы
Если Вы хотите оставить отзыв на товар, то присылайте на почту info@vegasd.ru
Почему выбирают нас

ОФИЦИАЛЬНЫЙ ПАРТНЕР
ПРЕДСТАВЛЕННЫХ БРЕНДОВ

100% ГАРАНТИЯ
НА ВСЕ ТОВАРЫ НАШЕГО МАГАЗИНА

ВЫСОКИЕ СТАНДАРТЫ
КАЧЕСТВА

ЗНАЕМ ЦЕНУ ВРЕМЕНИ
РАБОТАЕМ В СРОК
Нам доверяют






